


Capacité d'accueil : 15 pers.
Gîte La Clé des Champs
Gîte pour 15 personnes
Description
Découvrez notre maison calme indépendante, rénovée en 2022, nichée au cœur de notre exploitation agricole à Avrillé, Vendée.
Produisant céréales et prairies, ce gîte chaleureux s’étend sur un domaine de 80 hectares, avec un espace dédié de 1500 m², comprenant une terrasse privative, avec salon de jardin et plancha ainsi qu’un abri extérieur avec table de ping-pong, complété par un parking privé.
Idéalement situé, notre gîte se trouve à seulement 10 km des plages de Jard-sur-Mer et Saint-Vincent-sur-Jard, 1,5 km du Château des Aventuriers, 4,5 km de Préhisto’Site du Cairn, et 5 km de La Folie de Finfarine. Pour les amateurs de sensations fortes, O’Fun Park et O’Gliss Park sont à proximité, tandis que les célèbres Sables d’Olonne sont à seulement 20 km et la Tranche-sur-mer à 18 km.
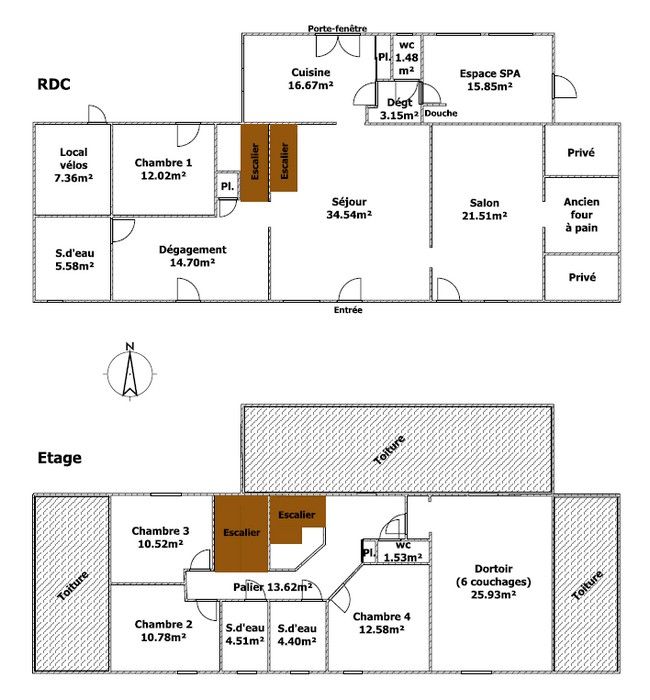
Offrant confort et espace dans le calme, le gîte se compose au rez-de-chaussée d’une cuisine équipée, un séjour accueillant équipé d’un poêle à pellets, un salon chaleureux, un espace détente pour enfants avec babyfoot, ainsi qu’une chambre confortable avec un lit de 140, complétée par une salle d’eau et wc indépendant.
À l’étage, découvrez trois chambres spacieuses et un dortoir de 26m² avec diverses options de couchage, ainsi que deux salles d’eau et deux wc indépendants, garantissant votre confort et votre intimité.
NOUVEAUTÉ 2025 : retrouvez notre spa 5 personnes avec douche attenante , dans son espace sécurisé au sein du gîte.
Profitez d’un séjour unique, entouré de nature, de chemins de randonnée, tout en bénéficiant d’un accès facile aux attractions locales et aux activités de plein air. Réservez dès maintenant pour vivre une expérience inoubliable en Vendée !
Pratique
Ouverture :
Langues parlées
Equipements
Confort immobilier :

Local vélo




Equipements :
5 chambre(s)
Confort mobilier :







Services :
Tarifs
Semaine (meublé) :
Mini : 1900,00 € / Maxi : 2800,00 €Week-end (meublé) :
Mini : 1200,00 € / Maxi : 1600,00 €Moyen(s) de paiement :


Prochaine marée haute dans :