


Capacité d'accueil : 15 pers.
La Clé des Champs
Description
Maison indépendante rénovée en 2022, située sur l’exploitation agricole des propriétaires (céréales et génisses laitières) à Avrillé ; à 10 km de Jard sur Mer, Saint Vincent sur Jard, Longeville-sur-mer et Talmont-Saint-Hilaire, à 1,5 km du Château des Aventuriers et 5km de La Folie de Finfarine.
Un spa 5 personnes, a été installé en juillet 2024, dans une espace sécurisé.
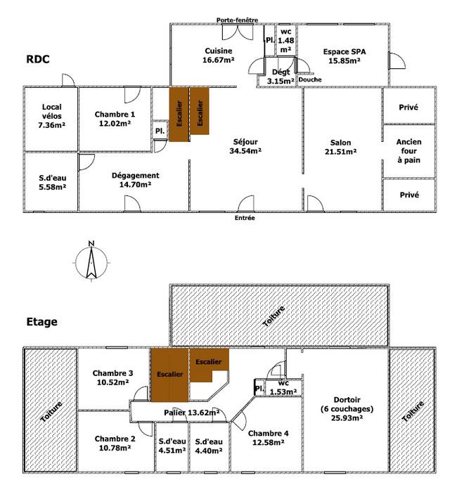
Le gîte est composé au RDC d’une entrée/cuisine, d’un séjour équipé d’un poêle à pellets avec barrière sécurisée, d’un salon, d’un coin détente pour les enfants, d’une chambre (1 lit 140) et d’une salle d’eau avec WC indépendant.
A l’étage : 3 chambres (1 lit superposé avec 1 lit 140 en bas et 1 lit 90 en haut) (1 lit 160) (1 lit 160) et un dortoir de 26m² (2 lits 90 et 2×2 lits superposés 90), 2 salles d’eau et 1 WC indépendant.
Wifi.
Terrasse privative, salon de jardin, transats, plancha, sur la propriété de 80 hectares des propriétaires (1500m² pour le gîte), parking privatif. Un abri extérieur avec table de ping-pong.
A 10 km de O’Fun park (Moutiers les Mauxfaits) et 10 km O’Gliss park (Le Bernard), à 29 km du Grand Défi (St Julien des Landes, accrobranche, aquapark, etc..) et à 22 km des Sables d’Olonne, 20 km de la Tranche-sur-Mer.
Inclus dans le tarif : chauffage, draps et linge de toilette.
Pellets inclus dans le tarif.
En option : forfait ménage 200€/séjour.
En supplément : taxe de séjour.
Installation d’un spa 5 personnes inclus dans le tarif.
Pratique
Equipements
Confort immobilier :



Equipements :
5 chambre(s)
Confort mobilier :






Services :
Tarifs
Nuitée (meublé) :
Mini : 222,00 € / Maxi : 600,00 €Semaine (meublé) :
Mini : 1900,00 € / Maxi : 2800,00 €Moyen(s) de paiement :



Prochaine marée haute dans :